官方微博
网站首页 > 新闻中心 > 规划信息公示

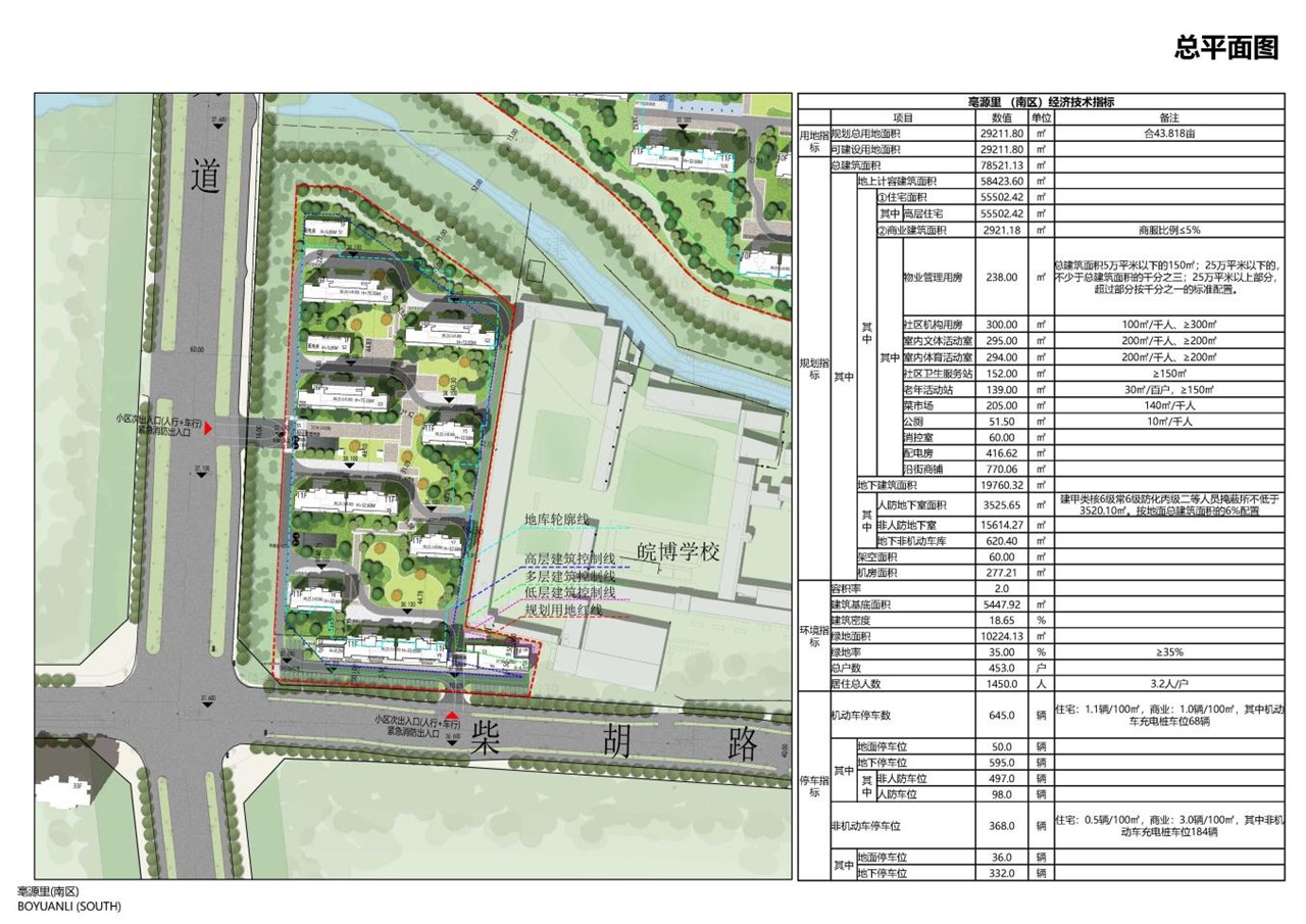
亳州市谯城区亳源里(南区)地块规划设计方案公示

访问次数: 来源:市自然资源和规划局 发布时间:2021-10-19 16:10
文字大小:

   置:柴胡路以北、药王大道以东、羊建沟以南

建设单位:亳州建投房地产开发有限公司

设计单位:上海天华建筑设计有限公司

用地规模:29211.8平方米(合43.818亩)

用地性质:商住用地

一、方案简介:该方案总建筑面积78521.13平方米(地上建筑面积58760.81平方米,地下建筑面积19760.32平方米),计容建筑面积58423.60平方米;容积率:2.0,建筑密度:18.65%,绿地率:35%;机动车停车位645个(地上50个,地下595个)。

二、网上公示意见或建议反馈途径

1、登录亳州市自然资源和规划局网站查询;

2、亳州广播电视台出品的APP“掌上亳州”公告栏;

3、公示时间不少于7个工作日,如有意见,工作日时间前往亳州市城乡规划设计院反馈。信函反馈意见,请邮寄至书面反馈意见邮箱。地址:亳州市谯城区光明路133号,邮箱:2843556618@qq.com。联系电话:0558-5122015,0558-5122723。

2021年10月19日

扫一扫在手机打开当前页

Copyright©2025安徽省亳州市人民政府 版权所有 All rights reserved 皖ICP备19011442号
主办单位:亳州市自然资源和规划局(亳州市林业局) 联系方式:0558-5120111
  网站标识码:3416000020  网站导航  本站已支持IPv6访问
皖公网安备 34160202000067号