位 置:曹霸路以东、旋花路以北
建设单位:安徽皖港通达置业有限公司
用地规模:35274.6平方米(合52.912亩)
用地性质:商住用地

调整楼栋位置
一、调整原因:
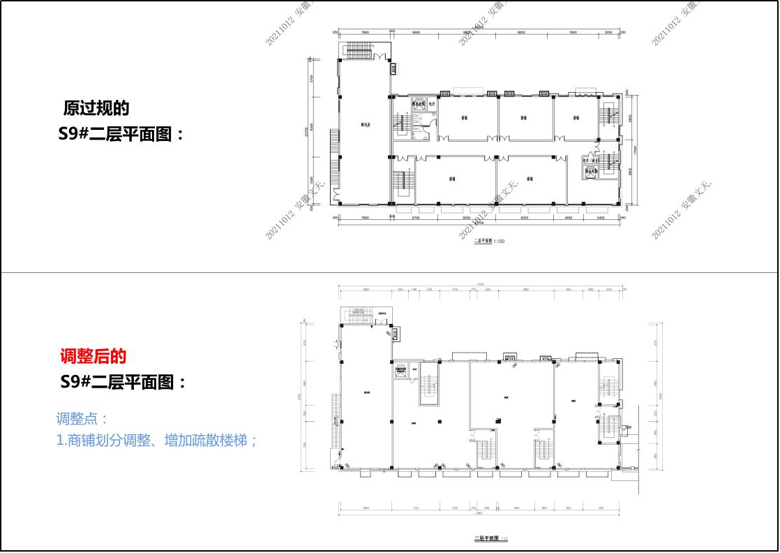
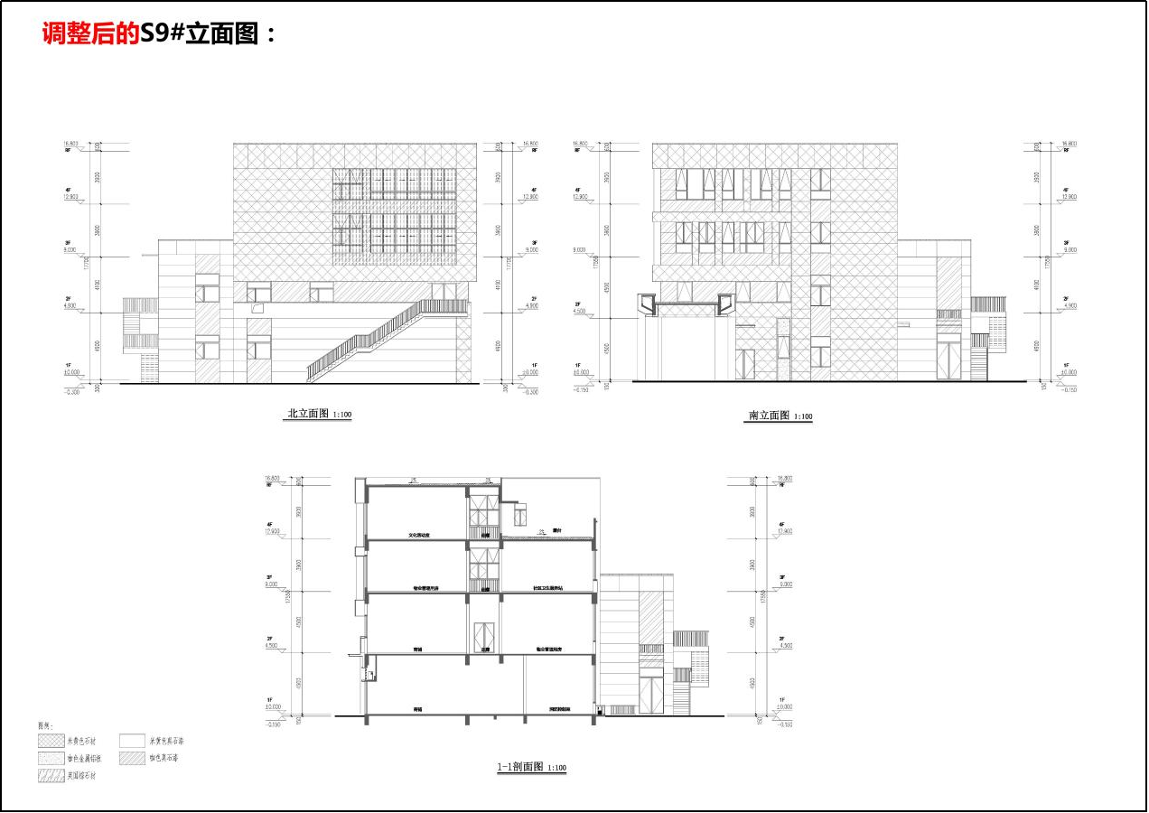
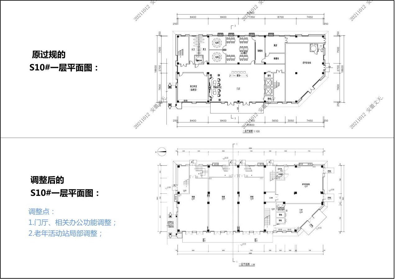
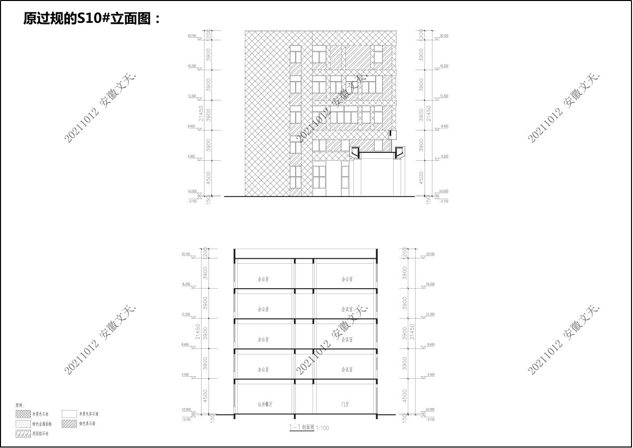
该项目原设计方案于2021年10月批准,目前项目施工图按照原设计方案深化满足不了现行规范的要求,现项目单位申请按照现行规范要求,调整S9#、S10#内部功能。
二、主要调整内容:S9#、S10#内部功能调整,增设无障碍卫生间。前后经济技术指标不变。具体见下图:
















三、网上公示意见或建议反馈途径
1、登录亳州市自然资源和规划局网站查询;
2、周边各单位及住户如对此规划方案有异议,请自公示日起7个工作日内以书面形式与我局联系。我局将在公示期满后综合分析有关单位和住户的意见,并按有关技术规范和规定给予办理相关手续。地址:亳州市谯城区光明路133号,邮箱:BZGHY5122723@163.com。联系电话:0558-5123370,0558-5122723。
2023年12月25日
扫一扫在手机打开当前页
Copyright©2025安徽省亳州市人民政府 版权所有 All rights reserved 皖ICP备19011442号
主办单位:亳州市自然资源和规划局(亳州市林业局) 联系方式:0558-5120111
网站标识码:3416000020 网站导航 本站已支持IPv6访问
皖公网安备 34160202000067号