关于亳州城西地块项目调整方案公示
位 置:芍花西路南侧、药王大道东侧
建设单位:亳州金地中联置业有限公司
设计单位:安徽清石建筑设计研究院有限责任公司
用地规模:41734 ㎡(合 62.601 亩)
用地性质:商住用地
一、调整原因:
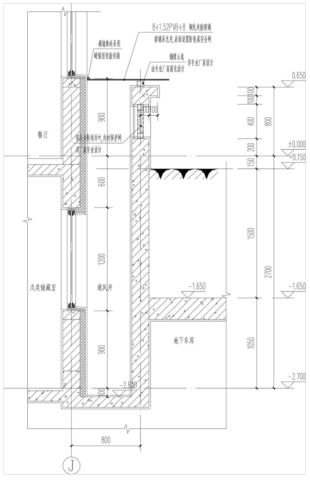
为进一步提升本小区的整体品质,更好地满足业主对本居住项目的定位标准,现对小区景观进行优化提升,并根据景观相应提升大门造型。 二、调整内容: 小区内部景观调整(乔灌、复层植物群落、内部景观提升,围墙范围不变,样式调整),消防道路、登高场地、楼栋位置、停车位等均未做调整,绿地率不变;10#建筑单体北侧增加通风井;S2#(北大门)及西大门平面及立面调整;上述调整不影响面积等指标。
三、总平面图对比


四、鸟瞰图对比


五、10#通风井调整


六、大门调整对比
(1)西大门调整

(二)北大门调整

七、围墙修改

八、网上公示意见或建议反馈途径
1、登录亳州市自然资源和规划局网站查询;
2、周边各单位及住户如对此规划方案有异议,请自公示日起7个工作日内以书面形式与我局联系。我局将在公示期满后综合分析有关单位和住户的意见,并按有关技术规范和规定给予办理相关手续。地址:亳州市谯城区光明路133号,邮箱:BZGHY5122723@163.com。联系电话:0558-5123370,0558-5122723。
2024年6月21日
扫一扫在手机打开当前页
Copyright©2025安徽省亳州市人民政府 版权所有 All rights reserved 皖ICP备19011442号
主办单位:亳州市自然资源和规划局(亳州市林业局) 联系方式:0558-5120111
网站标识码:3416000020 网站导航 本站已支持IPv6访问
皖公网安备 34160202000067号