
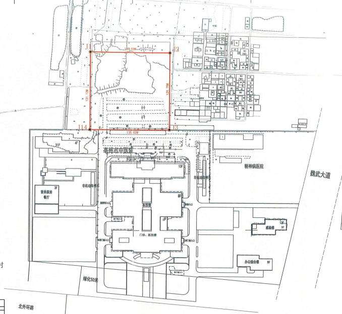
一、用地位置、范围(另详见附图):魏武大道以西、北一环以北(亳州市中医院北侧)。
二、拟编制控制性详细规划用地性质、面积
1.用地性质:医院用地
2.用地面积:约17614.0平方米(合约26.421亩)
三、用地规划要求
1.容 积 率:不大于1.5
2.建筑密度:不大于40%
3.绿 地 率:不小于30%
公示期自2026年3月20日至2026年4月19日,如有意见请于2026年4月19日前来电、邮箱或书面意见反馈至亳州市城乡规划设计院。
电话:0558-5122590;邮箱:bzsghxxk@126.com
地址:亳州市城乡规划设计院四楼规划信息科(光明路与三曹路交口东北角)。
扫一扫在手机打开当前页
Copyright©2026安徽省亳州市人民政府 版权所有 All rights reserved 皖ICP备19011442号
主办单位:亳州市自然资源和规划局(亳州市林业局) 联系方式:0558-5120111
网站标识码:3416000020 网站导航 本站已支持IPv6访问
皖公网安备 34160202000067号